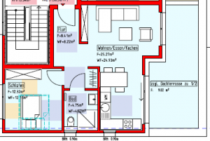
wohnung5-1